Location: Hai Duong Province
Area: 95m2 (5×19)
Type: Residential
Hieght: 3 storeys
Year: 2023-2024

Perspective- Aerial view
Phối cảnh minh họa – Góc nhìn chim bay.

Elevations
Mặt đứng chính và Mặt đứng bên

Perspective section
Mặt cắt phối cảnh

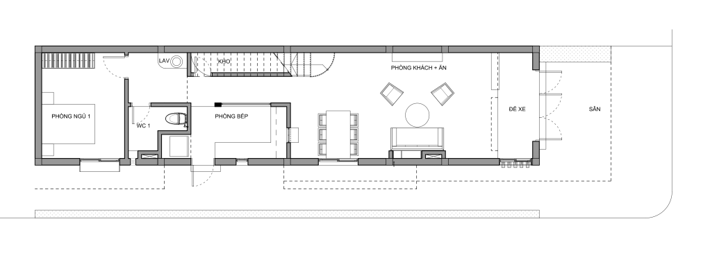
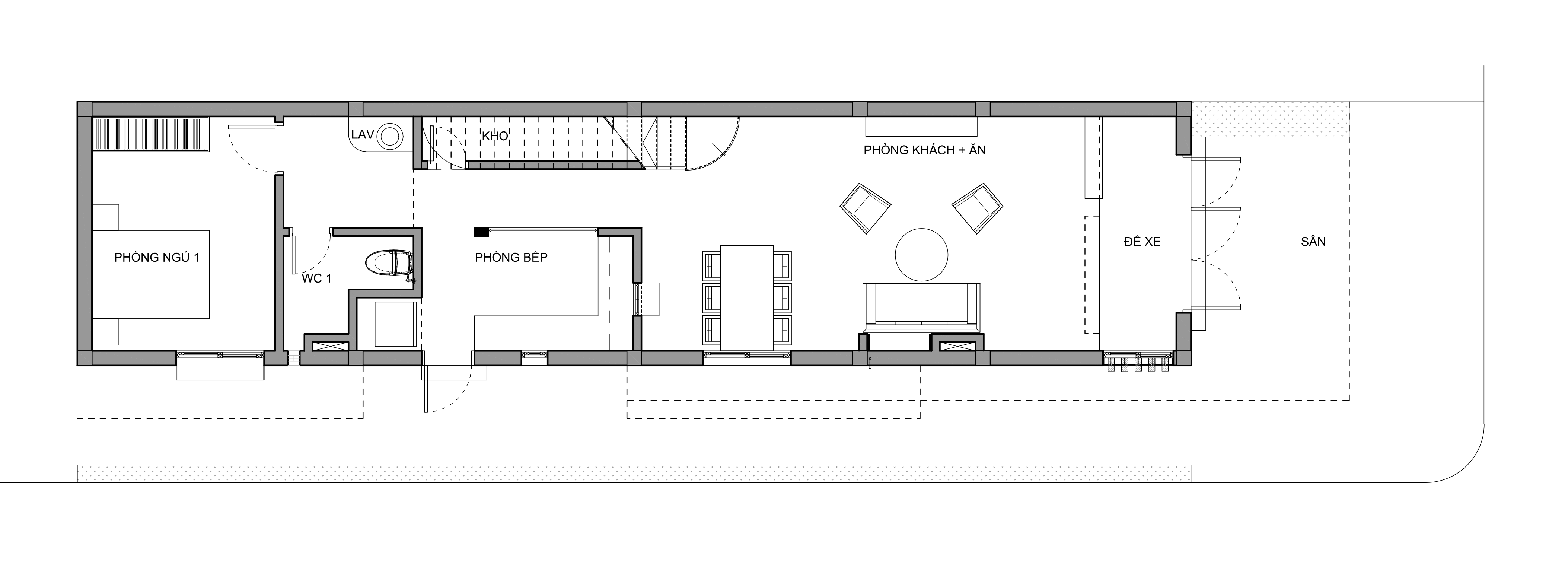
1st Floor Plan
Mặt bằng tầng 1

2nd Floor Plan
Mặt bằng tầng 2

3rd Floor Plan
Mặt bằng tầng 3

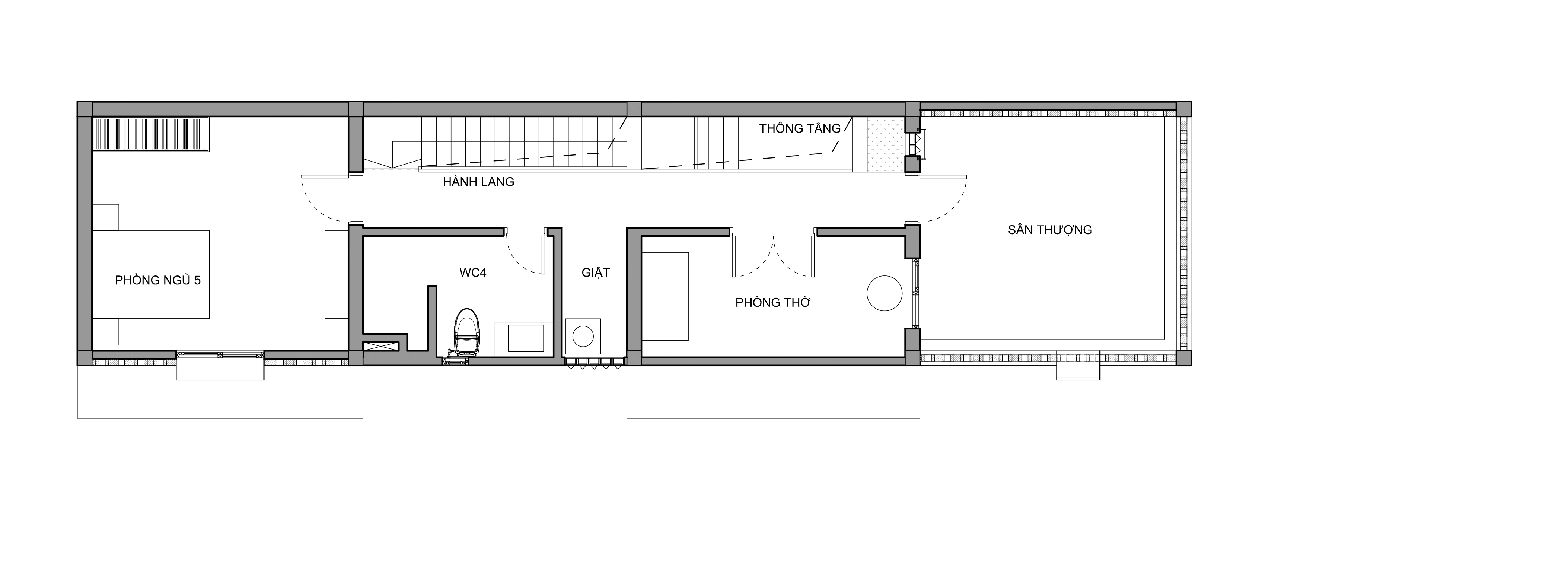
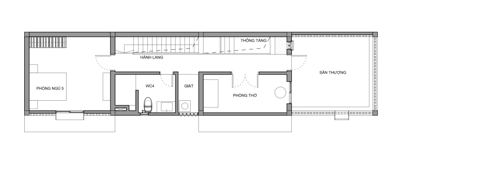
Roof Floor Plan
Mặt bằng tầng mái

Perspective- Yard
Phối cảnh minh họa – Sân thượng