Kiến trúc nhà ở vùng nhiệt đới luôn luôn cần giải quyết vấn đề lớn là chống nắng /nóng và thông gió. Bài học từ kiến trúc dân gian với mái tranh tre nứa lá và ngói luôn đem lại nhiều giá trị quý báu có thể học hỏi được. Với cảm hứng trên, chúng tôi đang sử dụng cây xanh, lớp che chắn thứ hai trong các thiết kế nhà ở với vật liệu và kỹ thuật hiện đại.
Nha Trang House
Thiết kế: D3A
Tình trạng: Hoàn thành GĐ thiết kế.


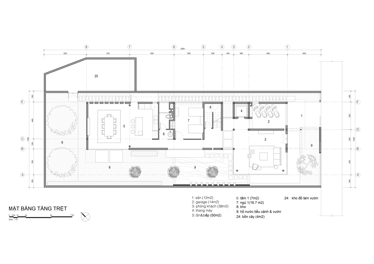
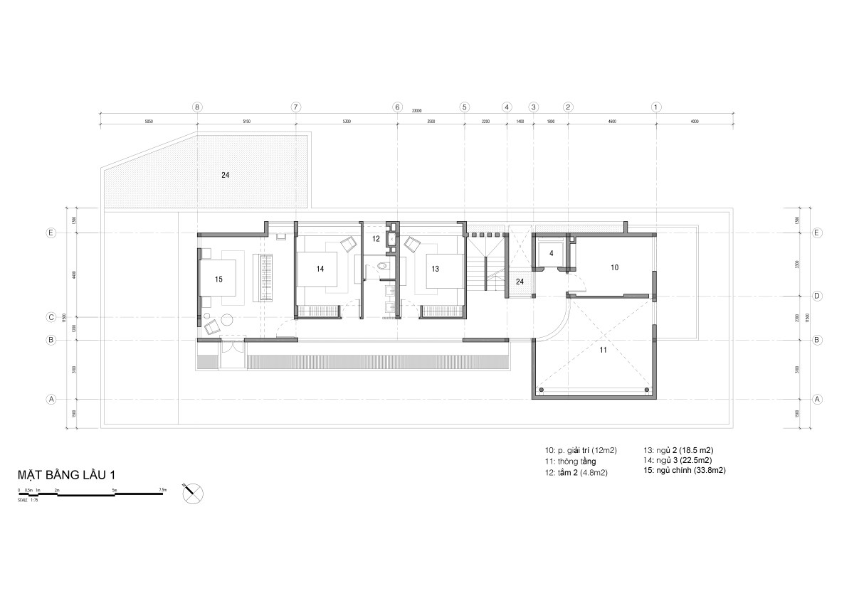
Khu đất nằm tại ngã tư ở thành phố biển Nha Trang. Diện tích rộng nhưng hình dáng không vuông vức, tuy vậy vì nhu cầu sử dụng cho một cặp vợ chồng và hai con không lớn nên đề xuất về một ngôi nhà một tầng bố cục phân tán đã giải quyết các vấn đề đặt ra.
Các không gian bố trí phân tán dọc trục giao thông, bắt đầu từ lối vào chính từ hướng Đông và đầu kia là lối vào garage từ hướng Nam. Các không gian này đồng thời bao quanh và hướng tầm nhìn về một hồ nước tiểu cảnh trang trí trung tâm. Hồ nước này là để tạo điểm nhìn đẹp cho các không gian nội thất nhưng cũng đóng vai trò điều hòa khí hậu cho không gian bên trong. Khi trời nắng, hơi nước bốc lên sẽ theo gió thông ngang sẽ làm mát không khí trong nhà.

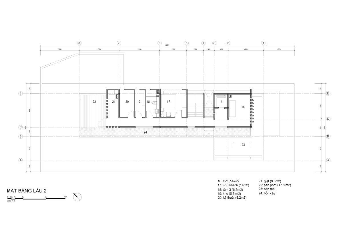
Mái bằng BTCT trồng cây tạo một lớp cách nhiệt tự nhiên. Ngoài ra một hệ mái có khung bằng gỗ và thép sẽ tạo ra một lớp mái thứ hai. Hệ khung như vậy dựa trên 6 cột độc lập, những cột này cũng cho phép cây leo từ vườn có thể leo thẳng lên trên mái thứ 2. Tuy nhà thấp nhưng từ ngoài không thấy bình nước ví chúng được bố trí trong khoảng giữa hai mái này.


Mô hình nghiên cứu:





Ở công trình này, thiết kế sử dụng bố cục phân tán và hai lớp mái để cách nhiệt, tránh nắng trực tiếp. Sử dụng vật liệu gỗ conwood cho tường vừa trang trí vừa làm lớp cản nhiệt cho tường. Cây xanh được dùng theo cả nghĩa đen và nghĩa bóng trong ý nghĩa ‘lọc’ thiên nhiên vào nhà ở cho con người
Can Tho Villa
Thiết kế: D3A. 2016
Tình trạng: Hoàn thành GĐ thiết kế.
Trong thiết kế này cho một chủ đầu tư tại Cần Thơ thành phố thủ phủ miền Tây Nam Bộ, thiết kế cũng sử dụng ‘hai lớp’ (double layers) và cây xanh trong mục đích chống nắng nóng nhưng trên cả phương ngang (mái) và phương đứng (các mặt đứng).
Ngôi nhà hình chữ L bao gồm ba khối hộp lồng ghép vào nhau theo cả 3 chiều. Mảnh đất hướng Đông Nam, rộng 13m sâu 28m. Có thể thấy rõ đặc điểm khác biệt của khu đất với các nhà hàng xóm xung quanh. Thực vậy, nằm trong một khu dân cư đông của thành phố trung tâm miền Tây, đường vào nhà từ con hẻm chỉ rộng 2,5m và liến kề với các nhà lô phố có diện tích nhỏ cao từ 1-4 tầng lầu.
Hạn chế về không gian xung quanh yêu cầu kiến trúc sư cần giải quyết thấu đáo vấn về tầm nhìn và sự riêng tư của ngôi nhà. Nhà hình chữ L quay vào trong được hình thành bởi sự lồng ghép của 3 khối hộp, tạo ra bố cục ngoài/giữa/trong với trung tâm là một hồ nước cảnh nằm ngay bụng chữ L. (NGOÀI là không gian hướng ngoại/ GIữA là không gian con người sử dụng/TRONG là không gian hướng nội). Đặt nhà lùi lại để tạo một khoảng sân trước nơi khách có thể để xe trước khi bước vào trong nhà. Việc này cũng làm tăng khoảng cách từ mặt hẻm, ngôi nhà có không gian mở ra của riêng mình. Trục không gian Ngoài/Giữa/Trong cũng tuần tự vào trong theo chiều sâu của khu đất.


Phối cảnh góc nhìn từ ngoài hẻm


Sử dụng toàn bộ diện tích mái để bố trí bình nước và hệ năng lượng mặt trời cho phần lớn nhu cầu điện và nước nóng trong gia đình. Các thiết bị này cũng tạo thành một lớp mái thứ 2 chống nóng cho không gian sử dụng bên dưới. Với mục đích tạo luồng gió tự nhiên thông gió cho nhà cả khi đóng cửa, thiết kế chú ý việc bố trí các ô lá sách nhôm ở mặt tiền và cả hai mặt bên.








Bắt đầu với một chút nghịch lý ‘đất rộng, hẻm nhỏ’, chúng tôi coi đây như là cơ hội để đưa ra một giải pháp thiết kế phù hợp và tạo sự hấp dẫn riêng của dự án.
Tình trạng ảnh hưởng do biến đổi khí hậu đang biểu hiện ngày một rõ rệt ở khắp nơi trên thế giới, cùng với tốc đô thị hóa và ý thức của con người làm giảm số lượng cây xanh, giảm diện tích công viên mặt nước việc thiết kế với định hướng tiết kiệm sử dụng năng lượng (hoặc chỉ dung năng lượng tự nhiên).
D3A
…………………………………………
Liên hệ chúng tôi để được tư vấn tổng quan miễn phí
Hotline: 0938 148 288
Email: d3a.hcm@gmail.com
Facebook: https://www.facebook.com/d3a.hcm
website: https://d3a.vn