Thể loại/ Type: Nhà ở/ Residential
Diện tích đất/ Land area: 600 m2
Diện tích sàn/ Floor area: 3200 m2
Tầng cao/ Storey height: 7
Vị trí/ Location: Binh Duong
Thể loại/ Type: Nhà ở/ Residential
- ARCHITECTURAL CONCEPT / Ý TƯỞNG KIẾN TRÚC
Located at the residential area of Vietnam-Singapore Industrial Park in Binh Duong province, the project has a favorable position to develop small home offices.
Nằm trong khu vực nhà ở trong khu công nghiệp Việt-Sing tại tỉnh Bình Dương, dự án có vị trí thuận lợi để phát triển căn hộ kết hợp văn phòng nhỏ.
From site location’s characters and design brief, we propose two different design options and name them as “Units” and “Central Void”.
Dựa vào vị trí khu đất, nhiệm vụ thiết kế chúng tôi đề xuất hai phương án thiết kế khác nhau và chúng tôi đặt tên lá “Units” và “Central Void”.
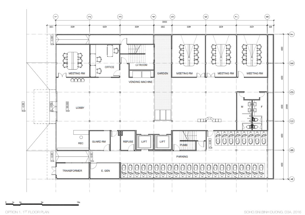
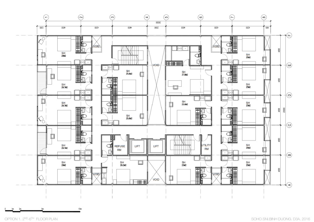
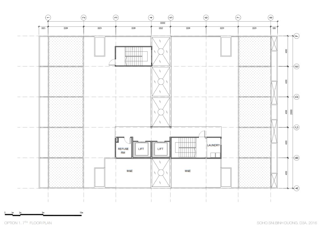
In both options, building consist of 6 floors of which the 1st floor includes main entrance, common spaces, M&E and sevices. From level 2 to level 6 have a total of 80 Soho rooms. The roof will be gardens, refreshing spaces, laundry corner and M&E area.
Cả hai phương án đều bao gồm 6 tầng trong đó tầng 1 dùng cho sảnh đón, không gian chung, kỹ thuật và phục vụ, từ tầng 2 đến tầng 6 là các tầng ở với tổng cộng 80 phòng. Trên mái sẽ là vườn cây, không gian giải khát, giặt phơi và bố trí thiết bị kỹ thuật.
While in option 1, “Units”, the idea formed with the image of creating building from separate units in a reasonable rhythm aesthetically and technically; then option 2, “Central void”; formed from the question how to bring more light and wind into building and create a central space that connects people in the building?
Trong khi phương án 1, “Units”, ý tưởng hình thành từ hình ảnh tạo dựng không gian của tòa nhà từ các đơn vị riêng rẽ trong một nhịp điệu hợp lý về thẩm mỹ và kỹ thuật; thì phương án 2, “Central void”; hình thành từ câu hỏi làm thế nào để mang ánh sáng, gió vào trong công trình nhiều hơn đồng thời tạo ta không gian trung tâm gắn kết mọi người ở trong tòa nhà?
Use steel structural system combines brick walls. Design using laminate flooring for bedrooms and industrial paints for the remaining flooring parts. Besides, while only the bathroom areas using plaster ceiling we propose exposed ceiling for the rest. Wall finishes using normal plaster and paints, only shower areas finished with tiles. Generally, these purposes are to reduce total cost and construction time while creating a dynamical and industrial interior space.
Sử dụng hệ thống kết cấu thép kết hợp tường gạch bao che. Thiết kế sử dụng sàn gỗ công nghiệp cho phòng ngủ và sơn công nghiệp cho các phần sàn còn lại. Trừ các khu vực phòng tằm sử trần thạch cao chúng tôi đề xuất phương án để lộ trần cho phần còn lại. Tường bao che sử dụng sơn bả thông thường chỉ ốp lát gạch cho khu vực tắm. Tất cả nằm trong mục đích giảm thiểu chi phí, thời gian xây dựng đồng thời tạo ra một không gian nội thất năng động và công nghiệp.
Using voids and skylights to bring natural light into all rooms, they also create airflows in the building.
Sử dụng các khoảng trống tầng có mái lấy sáng để mang ánh sáng tự nhiên tới tất cả các phòng ở, chúng đồng thời tạo ra luồng gió lưu thông trong tòa nhà.
Nowadays in Vietnam, construction technology allows planting trees safely on the roof of buildings, easier and more convenient for caring and maintenance work. We use part of the roof for greenery with the purpose of bringing space for relaxing, doing exercise and create a heat insulation layer for the roof.
Tại Việt Nam ngày nay, công nghệ và vật liệu xây dựng đã giúp cho việc trồng cây xanh trên công trình trở nên dễ dàng và thuận tiện cho việc chăm sóc. Chúng tôi sử dụng một phần mái để trồng cây xanh với mục đích mang đến không gian thư giãn, tập thể dục đồng thời tạo một lớp chống nóng hiệu quả cho mái.
Sustainable design will make the living space more comfortable and reduce the amount of energy consumed during operation throughout the lifetime of the building.
Thiết kế mang tính bền vững sẽ làm không gian sống dễ chịu hơn và giảm lượng năng lượng tiêu thụ trong quá trình vận hành trong suốt tuổi đời của công trình.




( Mời xem tiếp phương án 2 trong bài sau)
……………………………………………………………………………………………………………………………………………………………………………………………..
Liên hệ chúng tôi để được tư vấn tổng quan miễn phí
Hotline: 0938 148 288
Email: d3a.hcm@gmail.com
Facebook: https://www.facebook.com/d3a.hcm
website: https://d3a.vn
……………………………………………………………………………………………………………………………………………………………………………………………..



