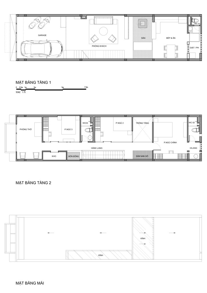
Thể loại/ Type: Nhà phố / Street house
Diện tích đất/ Land area: 100 m2 (5mx20m)
Tầng cao/ Storey height: 2
Vị trí/ Location: Bà Rịa Vũng Tàu
Năm/ Year: 2021
….



Hình ảnh công trình trong giai đoạn thi công hoàn thiện:

D3A
…………………………………………
Liên hệ chúng tôi để được tư vấn tổng quan miễn phí
Hotline: 0938 148 288
Email: d3a.hcm@gmail.com
Facebook: https://www.facebook.com/d3a.hcm
website: https://d3a.vn