Thể loại/ Type: Nhà vườn / Garden house
Diện tích đất/ Land area: 1000 m2
Tầng cao/ Storey height: 3
Vị trí/ Location: Hải Dương
Năm/ Year: 2021-2022




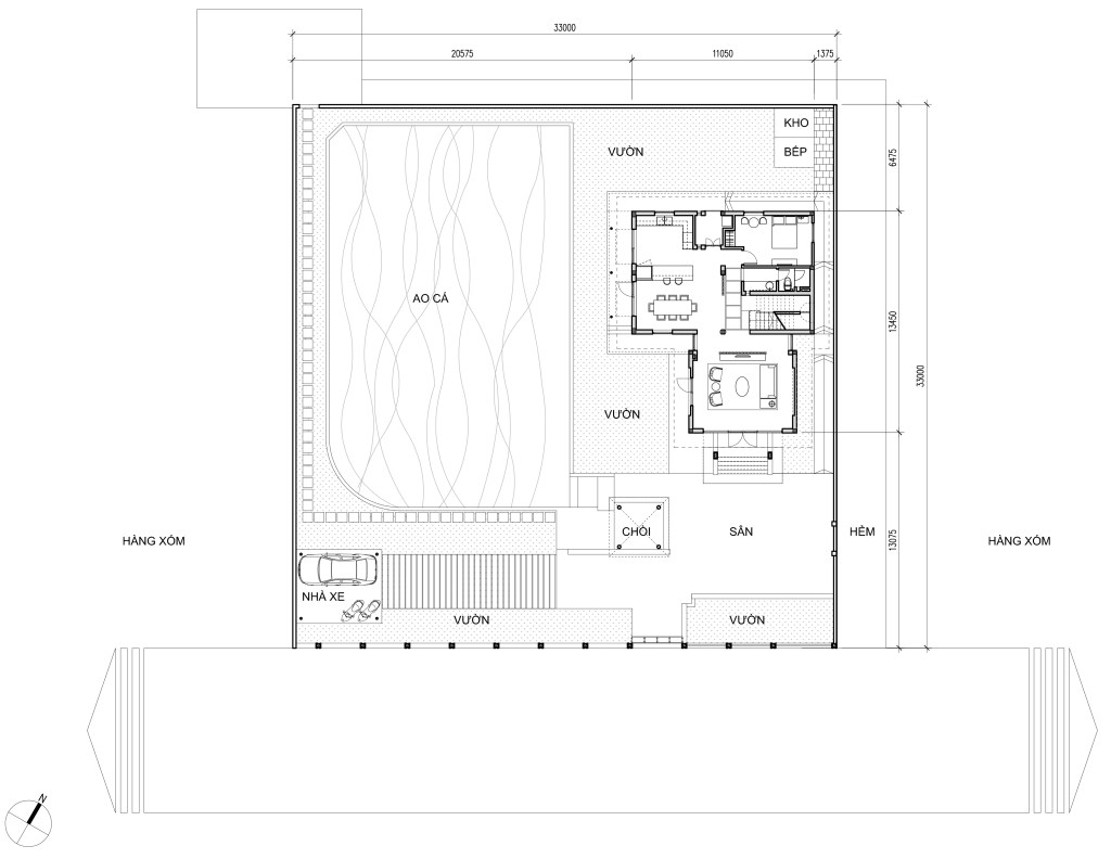
Mặt bằng tổng thể tầng 1 / Overall plan
…………………………………………
Liên hệ chúng tôi để được tư vấn tổng quan miễn phí/ Contact us:
Hotline: 0938 148 288
Email: d3a.hcm@gmail.com
Facebook: https://www.facebook.com/d3a.hcm
website: https://d3a.vn