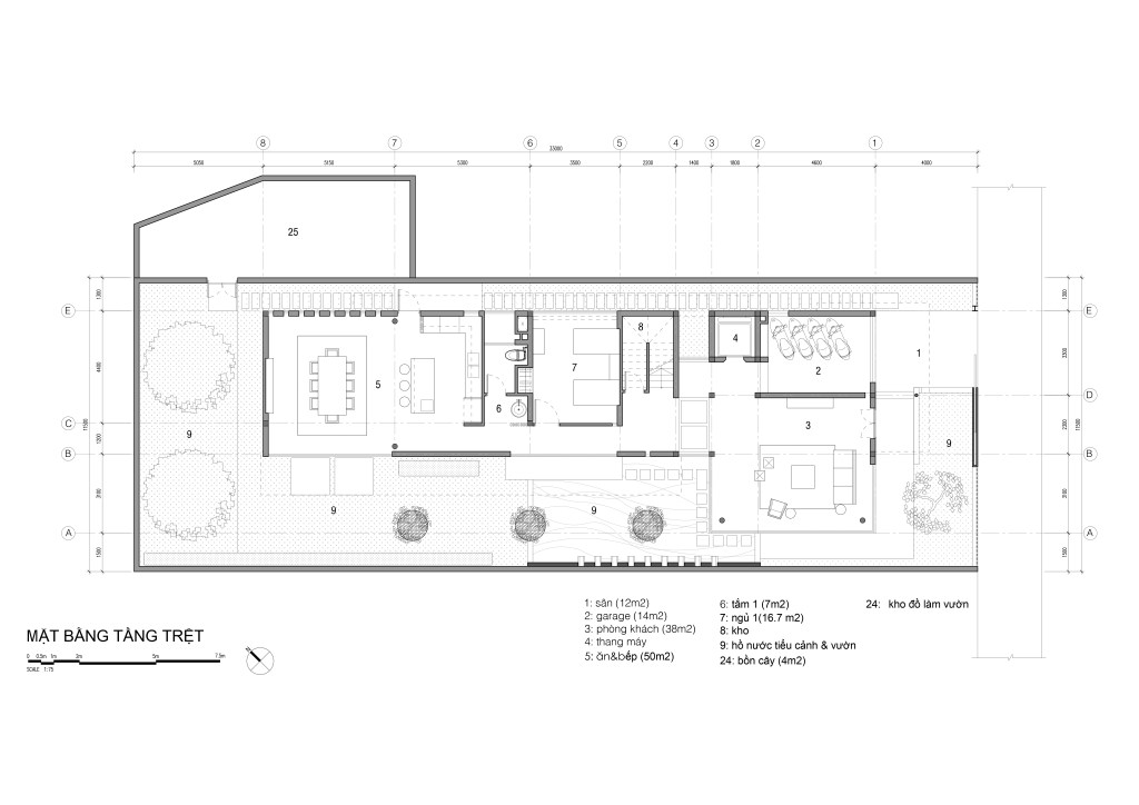
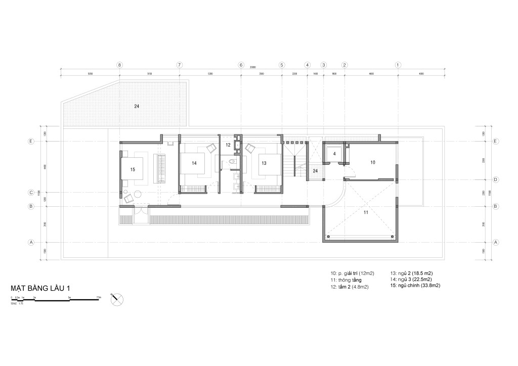
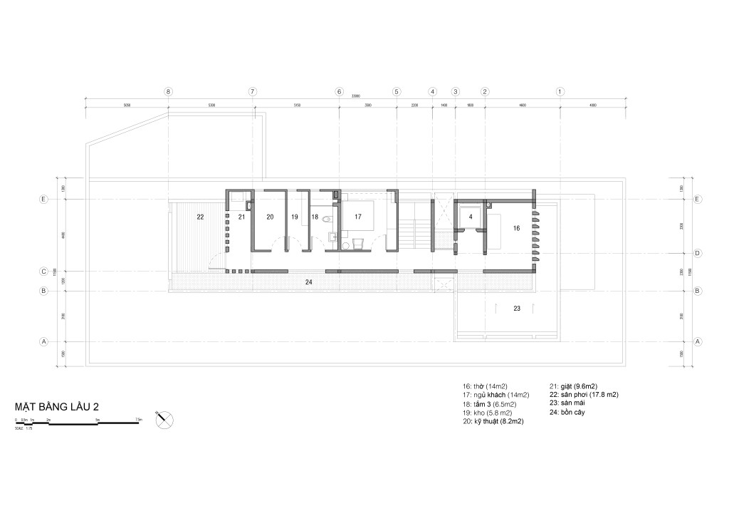
Diện tích đất/ Land area: 418m2
Tổng diện tích sàn/ GFA: 453m2
Tình trạng /Status: Chuẩn bị xây dựng
Năm thiết kế/ Year :2015
Vị trí/ Location: Thành phố Cần Thơ, Việt Nam
Nhận được sự tin tưởng của chủ nhà tại thành phố thủ phủ miền Tây, các kts D3A đã cùng nhau nghiên cứu đánh giá vị trí của lô đất và mong muốn của chủ nhà để đi đến một thiết kế mang tính hiện đại.
Với định hướng thiết kế kiến trúc bền vững, trong công trình này việc cân nhắc các yếu tố về thông gió và cách lấy sáng được nghiên cứu kĩ lưỡng. Kết quả là các không gian luôn thoáng, đón các luồng gió mát. Việc sử dụng các lam nhôm để cản nắng trực tiếp nhưng không làm tối không gian trong nhà. Ngoài ra, hệ cây xanh gồm cây xanh, thảm cỏ trong vườn, bồn bông, cây leo sẽ tạo thêm những tiểu cảnh, lớp áo xanh lớn ở 2 mặt bên theo chiều dài nhà làm giảm sự ảnh hưởng trực tiếp của sức nóng mặt trời lên tường cũng như sàn bê tông, đồng thời mang không gian xanh tới gần hơn các không gian ở.
D3A










