Tư vấn thiết kế: HTT Corp (Vietnam)
KTS Đoàn Dzũng tham gia chủ trì thiết kế
Mặt bằng tổng thể

Phối cảnh tổng thể

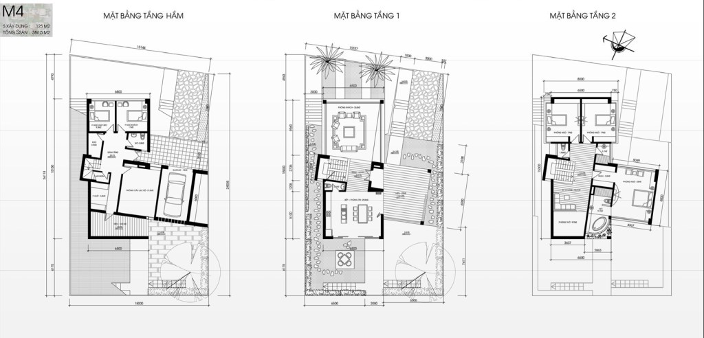
Dự án được phát triển trên khu đất thuộc một khu đô thị mới năng động gần biển của thành phố cảng Hải Phòng, hướng tới khách hàng trẻ thành đạt. Chỉ gồm 9 căn biệt thự đơn lập, ý đồ thiết kế là tạo ra một khu ở có ngôn ngữ kiến trúc hiện đại và đồng nhất. Mỗi căn gồm 2 khối nhà giao nhau có phương song song với các trục đường chính xung quanh. Cao 2 tầng và một tầng hầm, mỗi nhà có một mái phẳng thứ 2, kết nối trên tổng thể thành 2 mảng lớn dài, nhằm tạo ra một bố cục kiến trúc mạnh trên tổng thể. Có thể hình dung tổng thể khu này cô đọng thành 2 “tuyến” và 1 “điểm” (biệt thự ớ giữa). Những mái thứ 2 này vừa che chắn nắng mưa hay thời tiết xấu cho các khối nhà phía dưới, vừa tạo ra không gian kỹ thuật để bố trí bể nước mái, cục nóng điều hòa,…
Cảnh quan là một yếu tố quan trọng. Các sân vườn trước tạo ra khoảng lùi và thêm tầm nhìn trước mỗi nhà. Còn khu vườn sau mỗi nhà tuy riêng biệt nhưng các cốt cao độ của mỗi vườn khoảng vườn nhỏ không giống nhau mà được thiết kế xen kẽ, hợp với vườn các nhà kế bên tạo thành một khoảng trống nội khu lớn với nhiều cao độ. Đây chính là một yếu tố riêng biệt, cảnh quan đẹp chỉ dành riêng cho dự án này..









